
Monthly Rent
$1,800
Bedrooms
1
Bathrooms
1
Protect yourself from scams. Learn More
About 251 W 9th St
Book Tour Now With Online Calendar to Register @
Home Info:
New Everything
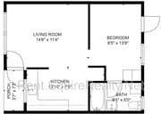
Remodeled completely inside show up and move in. New kitchen cabinets, new AC & Heat, new floors, new ceiling fans, new paint. DUAL Pane windows. 1 bedroom - 1 bathroom... unit. Street parking. Close to 210 Frwy, close to Citrus College and APU.
Video Open House Walk Through:
NO PETS Preferred but we will welcome quiet well behaived pets with excellent tenant $100 month pet rent and $500 additional security deposit.
#realestate #SquireRealty #home #ForRent #AzusaCA #Short #Shorts
Book Tour Now With Online Calendar to Register @
Home Info:
New Everything
Remodeled completely inside show up and move in. New kitchen cabinets, new AC & Heat, new floors, new ceiling fans, new paint. DUAL Pane windows. 1 bedroom - 1 bathroom unit. Street parking. Close to 210 Frwy, close to Citrus College and APU.
Video Open House Walk Through:
NO PETS Preferred but we will welcome quiet well behaived pets with excellent tenant $100 month pet rent and $500 additional security deposit.
#realestate #SquireRealty #home #ForRent #AzusaCA #Short #Shorts
251 W 9th St is a single-family homes community
Details
Property Information
- 1 unit
Fees and Policies
The fees below are based on community-supplied data and may exclude additional fees and utilities.
One-Time Basics
Due at Move-In
- Security Deposit - Refundable$1,800
Property Fee Disclaimer: Based on community-supplied data and independent market research. Subject to change without notice. May exclude fees for mandatory or optional services and usage-based utilities.
Map of 251 W 9th St
Shopping Centers
Shoppers will appreciate 251 W 9th St proximity to Azusa Square, The Alosta Center, and Citrus Shopping Center. Azusa Square is 0.9 miles away, and The Alosta Center is within an 18 minute walk.
Commuting
With a TransitScore of 60, 251 W 9th St has moderately friendly, including 10 transit stops within 12.4 miles. Transit options include Azusa Downtown Station and Apu / Citrus College Station.
Parks and Recreation
Recreational activities near 251 W 9th St are plentiful. Discover 1 park within 4.1 miles, including Covina Park.
Airports
Living in Azusa provides easy access to Ontario International, located just 31 minutes from 251 W 9th St. Another nearby airport is Bob Hope, located 32 miles away.
Walkability
Fairly walkable50 / 100
Transit
Good public transit60 / 100
Driveability
Exceptionally drivable90 / 100
Bikeability
Fairly bikeable40 / 100
Soundscore ™
Active71 / 100
Subway
Azusa Downtown Station
2 min Drive
Commuter Rail
Covina
8 min Drive


Commuter Rail
Baldwin Park
11 min Drive


Airport
Ontario International
32 min Drive

Airport
Bob Hope
41 min Drive

Airport
Long Beach (Daugherty Field)
43 min Drive

Longfellow
Grades K-5
Public
Slauson Intermediate
Grades 6-8
Public
Azusa High
Grades 9-12
Public
Data provided by GreatSchools.org 2024 © 2024. All rights reserved.
Drive: 5 min (1.6 mi)
Drive: 4 min (1.8 mi)
Drive: 16 min (9.9 mi)
Drive: 17 min (11.1 mi)
251 W 9th St Gallery
You Might Also Like These Properties
Within 50 Miles of 251 W 9th St
1443 N Fuller Ave, Los Angeles, CA 90046 Unit PL FL4-ID1347
10977 Bluffside Dr, Los Angeles, CA 91604 Unit PL FL1-ID922
Colonnade at The Market Place
Citrus Commons
Living at Santa Monica
Find More Apartments for Rent in Azusa, CA
Find Rentals Near Azusa, CA
Protect yourself from scams. Learn More
Monthly Rent
$1,800
Bedrooms
1
Bathrooms
1
Protect yourself from scams. Learn More
Shopping Centers
Shoppers will appreciate 251 W 9th St proximity to Azusa Square, The Alosta Center, and Citrus Shopping Center. Azusa Square is 0.9 miles away, and The Alosta Center is within an 18 minute walk.
Commuting
With a TransitScore of 60, 251 W 9th St has moderately friendly, including 10 transit stops within 12.4 miles. Transit options include Azusa Downtown Station and Apu / Citrus College Station.
Parks and Recreation
Recreational activities near 251 W 9th St are plentiful. Discover 1 park within 4.1 miles, including Covina Park.
Airports
Living in Azusa provides easy access to Ontario International, located just 31 minutes from 251 W 9th St. Another nearby airport is Bob Hope, located 32 miles away.
Walkability
Fairly walkable50 / 100
Transit
Good public transit60 / 100
Driveability
Exceptionally drivable90 / 100
Bikeability
Fairly bikeable40 / 100
Soundscore ™
Active71 / 100
Subway
Azusa Downtown Station
2 min Drive
Commuter Rail
Covina
8 min Drive


Commuter Rail
Baldwin Park
11 min Drive


Airport
Ontario International
32 min Drive

Airport
Bob Hope
41 min Drive

Airport
Long Beach (Daugherty Field)
43 min Drive

Longfellow
Grades K-5
Public
Slauson Intermediate
Grades 6-8
Public
Azusa High
Grades 9-12
Public
Data provided by GreatSchools.org 2024 © 2024. All rights reserved.
Drive: 5 min (1.6 mi)
Drive: 4 min (1.8 mi)
Drive: 16 min (9.9 mi)
Drive: 17 min (11.1 mi)



